An Optical Illusion

 

Previous Layout

 

New Floorplan

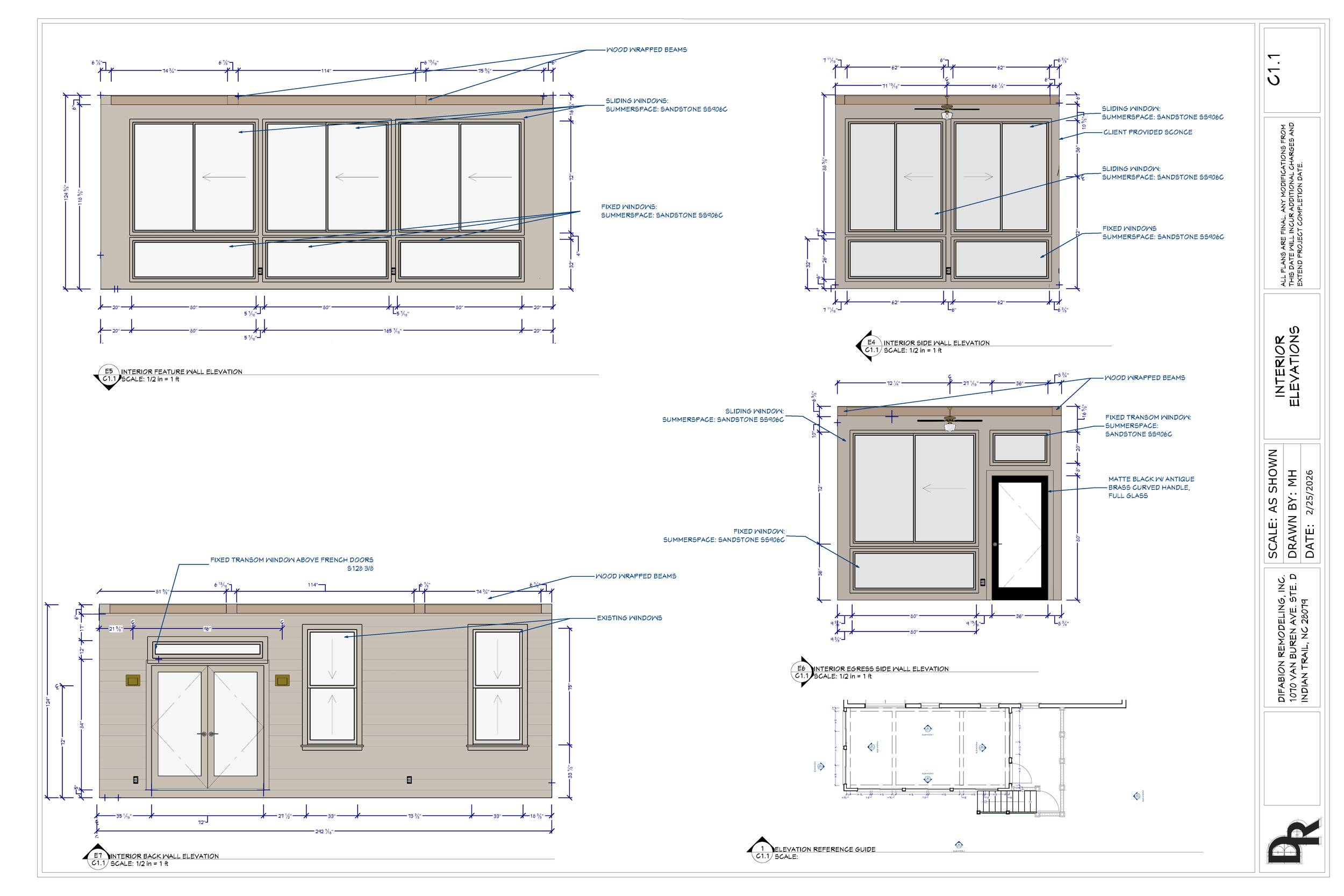
The goals of this project were to not expand the footprint of the screened porch but make it feel bigger, have more light, and be usable during the colder months. Initially, I had designed, and the clients had selected a vaulted ceiling. However, after learning the roof structure had engineered trusses, and we would therefore have to reframe the roof, thus increasing the budget, we decided to explore other options. My first thought was to create an optical illusion to create the feeling of height in the space. The clients were happy to have found a happy medium that doesn’t look like most other porch ceilings.

During this process, I also explored many different 3-season room window systems, as the client was hesitant to use the local option given. I sourced and informed the client of a few options, and they were pleased to make an informed decision.

The final design shows the beadboard section in white, to help increase the amount of light in the space. During the construction process, the client saw and fell in love with the wood grain of the pieces and wanted to see it stained. I recommended a high gloss to help with the brightness, and the result was a grounded tone that bounces the light.